location bureaux VALBONNE (06560)

Résumé

1 062 513 € / an

4 625 m² (min. 90 m²)

Référence / Disponibilité

000X839457 / Immédiate

Votre interlocuteur
Nous contacter
  1. Accueil
  2. Nos offres
  3. Location
  4. Bureaux
  5. Valbonne (06560)
  6. Bureaux à louer de 4625 m²

Partager sur :

location bureaux VALBONNE (06560)

Désignation

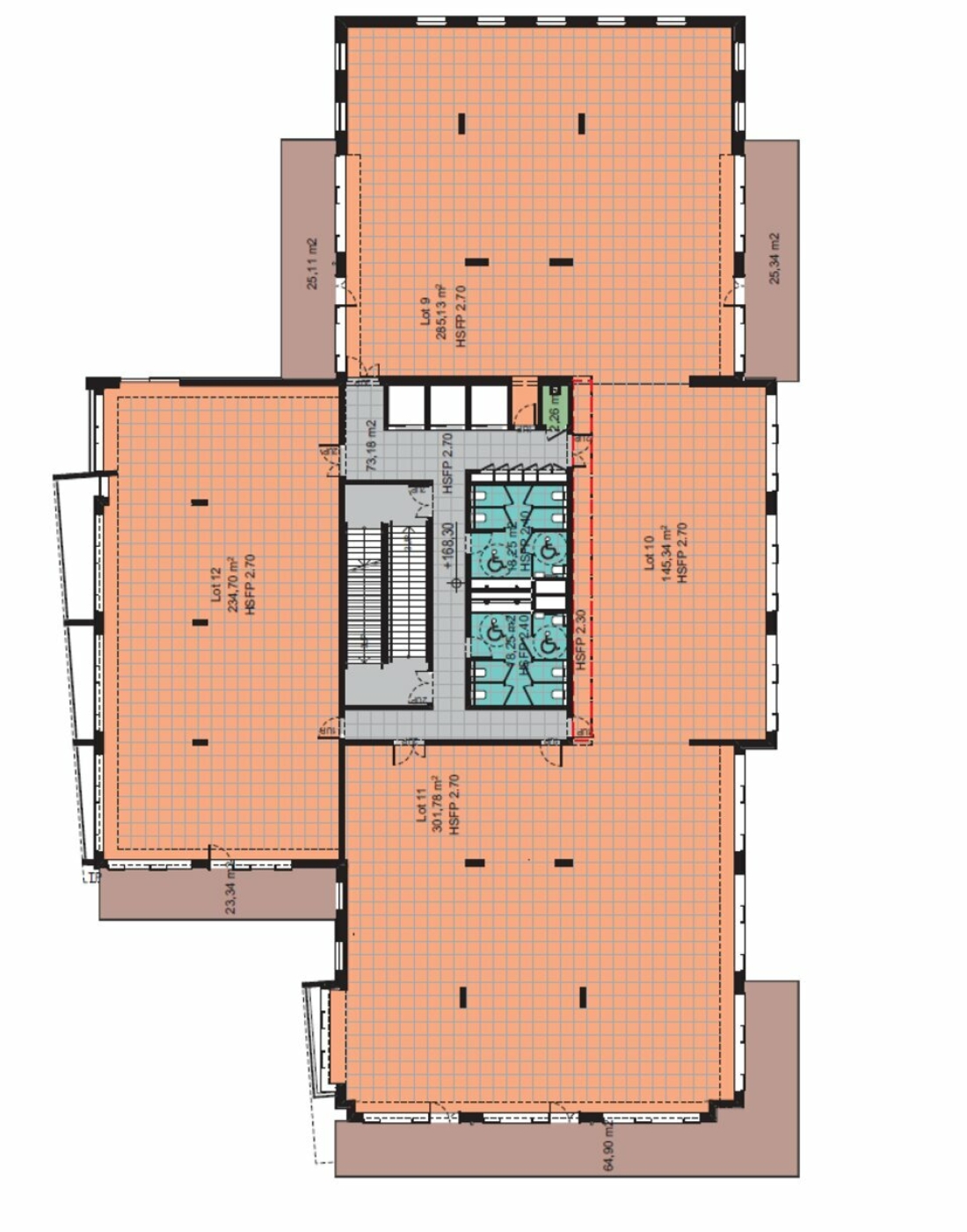
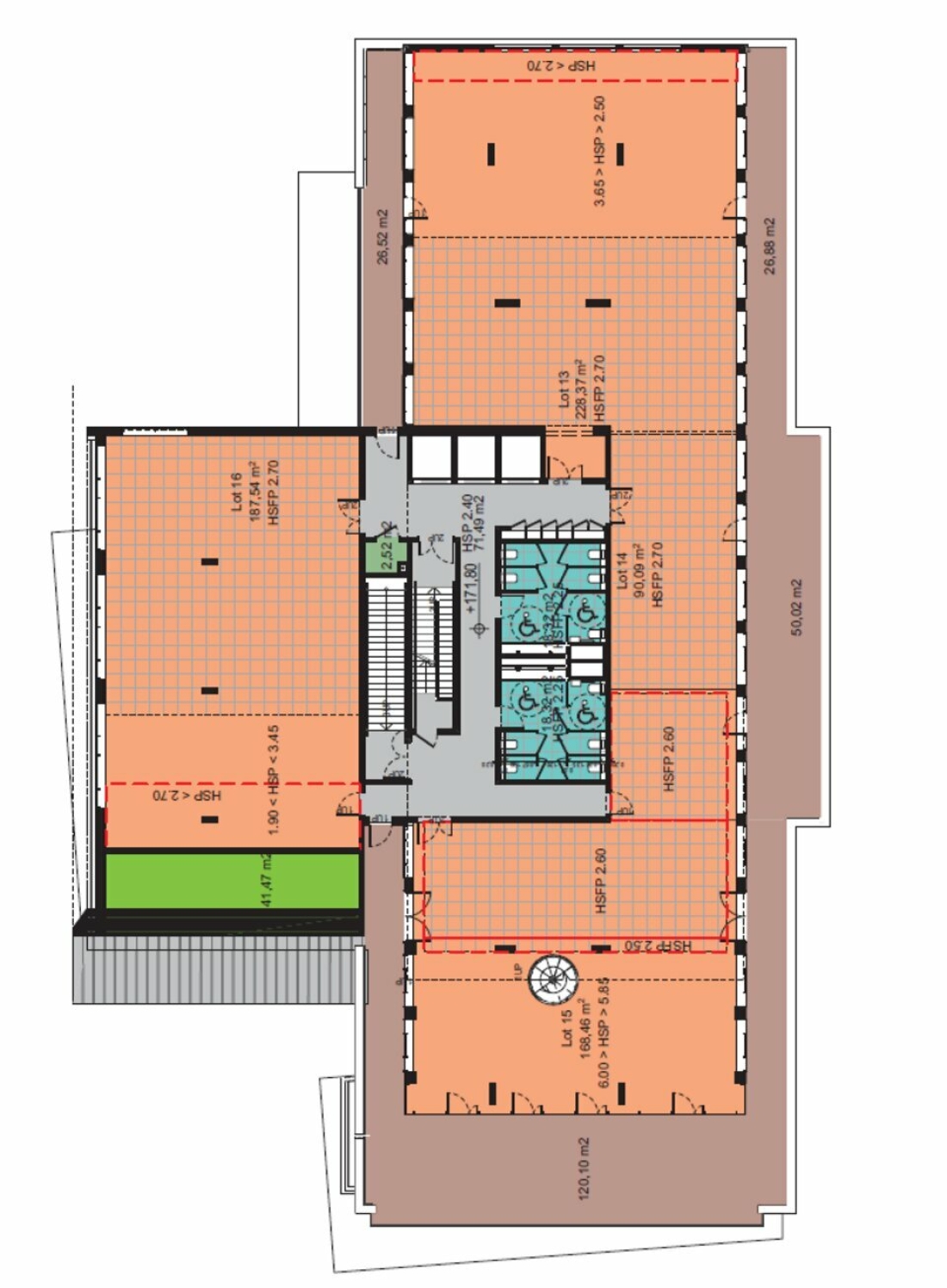
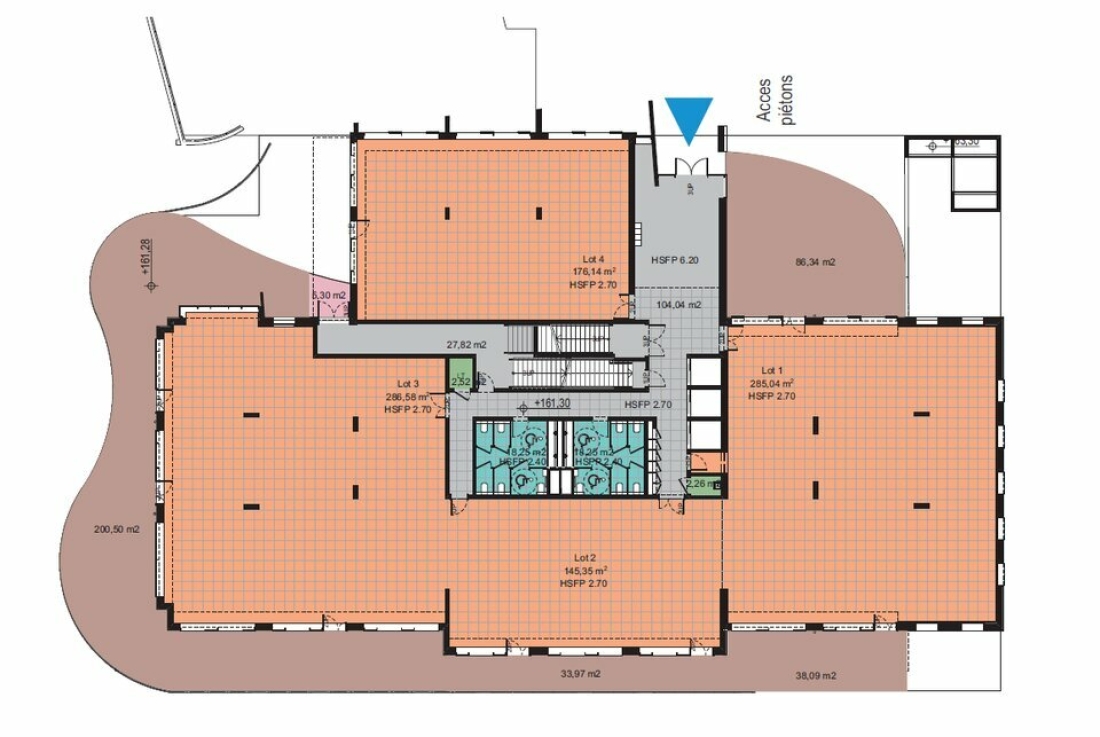
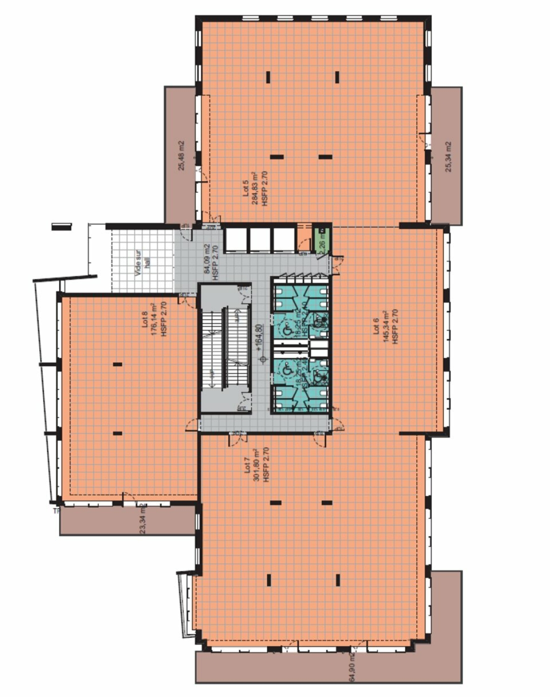
A louer immeuble indépendant à usage de bureaux idéalement situés dans la technopole de Sophia Antipolis à Valbonne, à proximité de la route des Lucioles. Surface: 4625,09 m² sur 4 niveaux. Bâtiment récent aux normes PMR, ERP et écoresponsable labélisé BREEAM. Sanitaires et douches. Climatisation réversible. Fibre optique. Prises RJ45. Grandes terrasses à chaque niveau. Double vitrage acoustique. Panneaux photovoltaïques en toiture. Belles prestations. Grand parking extérieur visiteur, 60 stationnements pour les motos et vélos. Loués avec 142 places de parking privées. Loyer CC: 88 542,80 € HT/mois. Autres surfaces possibles: de 90,09 m² à 4625 m²

Surface & descriptif

type de bien étage surface loyer* charges* disponibilité
Bureaux 4 625 m² 1062513 € 35021 € Immédiate
Bureaux 90 m² 1062513 € 35021 € Immédiate

* : exprimé en €/an HT HC


Conditions

  • Charges: 35021.69 € HT / an
  • Taxe foncière: 35021.69 €/an
  • Fiscalité: TVA
  • Dépôt de garantie: 3 mois HT/HC
  • Honoraires: 159376.95 € HT à la charge du preneur

Pour accéder à plus de détails sur nos honoraires, consulter notre barème.

Accès

    DPE & GES

    Consommation énergétique :

    Bâtiment économeBâtiment

    ≤ 50A *

    51 à 110B

    111 à 210C

    211 à 350D

    351 à 540E

    541 à 750F

    > 750G

    Bâtiment énergivore

    * En kg eqCO2/m².an

    Gaz à effet de serre :

    Faible émission de GESBâtiment

    ≤ 5A *

    6 à 15B

    16 à 30C

    31 à 60D

    61 à 100E

    101 à 145F

    > 145G

    Forte émision de GES

    * En kWh ep/m².an

    Les informations sur les risques auxquels ce bien est exposé sont disponibles sur le site Géorisques : www.georisques.gouv.fr.

    Consultez les offres similaires

    Nous contacter

    Nous contacter Vous avez un projet immobilier ?

    > Nous envoyer un email 04 93 35 08 68