cession de bail Locaux commerciaux NICE (06000)

Résumé

350 000 € (FAI)

75 m²

Référence / Disponibilité

000B839712 / Immédiate

Votre interlocuteur
Nous contacter
  1. Accueil
  2. Nos offres
  3. Cession de bail
  4. Locaux commerciaux
  5. Nice (06000)
  6. Locaux commerciaux à céder de 75 m²

Partager sur :

cession de bail Locaux commerciaux NICE (06000)

Désignation

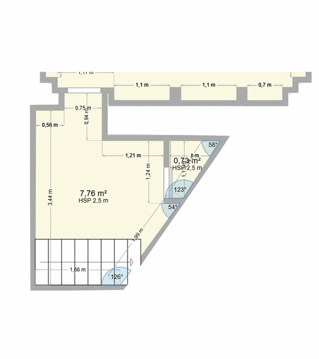
Emplacement N°1 !!! A céder droit au bail d'une boutique idéalement située sur un des axes principaux de Nice. Surface: 75 m² environ dont 28,61 m² au rez-de-chaussée + sous-sol de 39,26 m² + 1er étage de 7,76 m². Sanitaire. Climatisation. Accès PMR. Linéaire vitrine de 5 mètres. Restauration froide possible sans extraction. Proche transports en commun. Excellent état. Faible loyer: 1409 €/mois. Prix FAI: 350 K€. Dossier sur demande

Surface & descriptif

type de bien étage surface prix* disponibilité
Locaux commerciaux 75 m² 350000 € Immédiate

* : exprimé en € FAI


Conditions

  • Loyer: 16904 € / an
  • Fiscalité: Exonéré

Pour accéder à plus de détails sur nos honoraires, consulter notre barème.

Accès

    DPE & GES

    Consommation énergétique :

    Bâtiment économeBâtiment

    ≤ 50A *

    51 à 110B

    111 à 210C

    211 à 350D

    351 à 540E

    541 à 750F

    > 750G

    Bâtiment énergivore

    * En kg eqCO2/m².an

    Gaz à effet de serre :

    Faible émission de GESBâtiment

    ≤ 5A *

    6 à 15B

    16 à 30C

    31 à 60D

    61 à 100E

    101 à 145F

    > 145G

    Forte émision de GES

    * En kWh ep/m².an

    Les informations sur les risques auxquels ce bien est exposé sont disponibles sur le site Géorisques : www.georisques.gouv.fr.

    Consultez les offres similaires

    Nous contacter

    Nous contacter Vous avez un projet immobilier ?

    > Nous envoyer un email 04 93 35 08 68